| Thanh Profile | Nhôm Xingfa hệ 2001 nhập khẩu chĩnh hãng |
| Độ dày nhôm | 2.0 mm (+_5%) |
| Màu sắc | Trắng sứ, nâu sần, đen, ghi, cafe, vân gỗ |
| Kích thước | Sản xuất theo thực tế, tư vấn theo kích thước lỗ ban |
| Diện tích mở | 1/2 đến 4/6 diện tích ô cửa |
| Bánh xe | 100% sử dụng bánh xe kép |
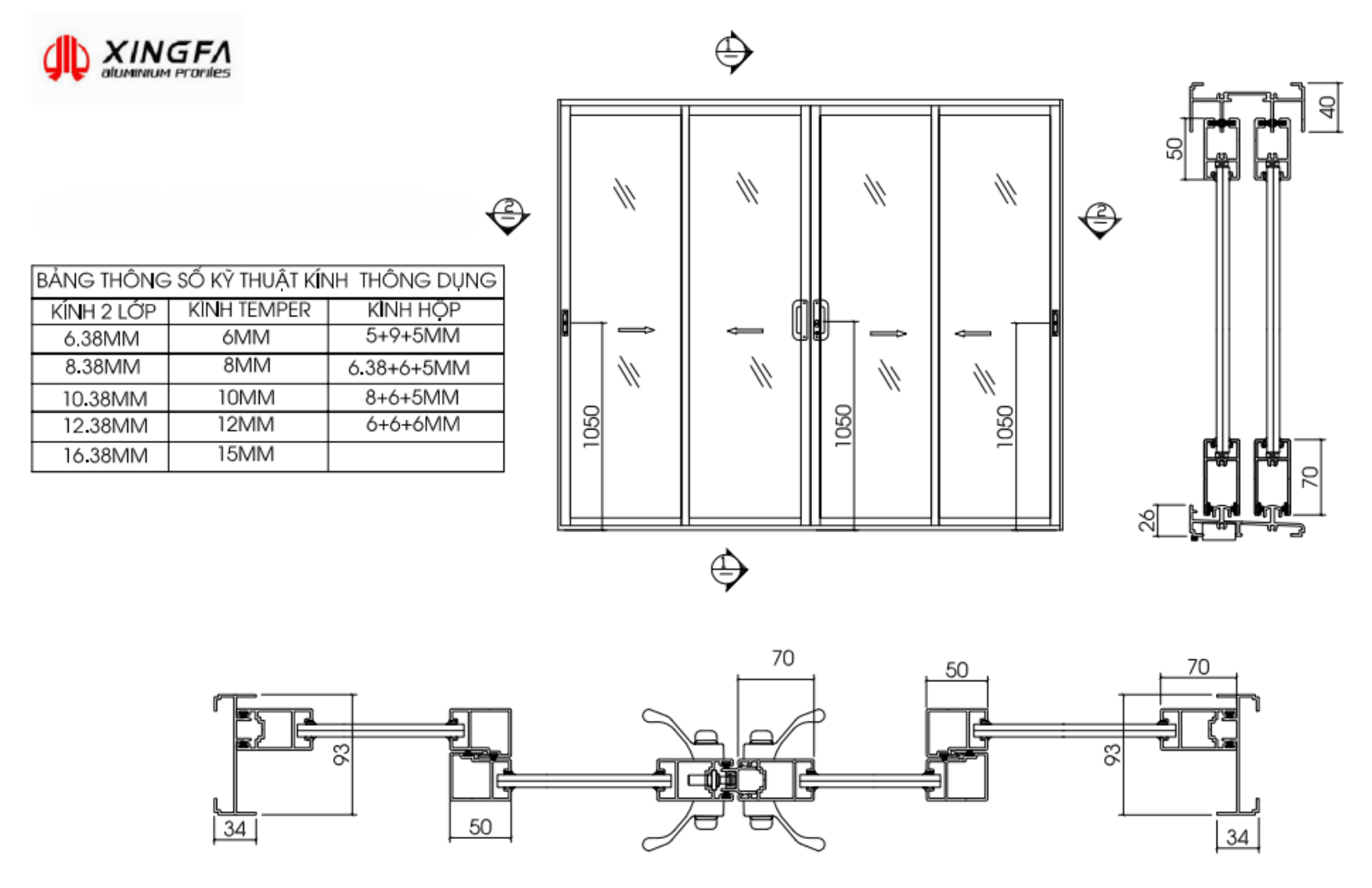
| Kính | Hải long có độ dày từ 6.38mm đến 21mm |
| Phụ kiện | Kinlong nhập khẩu cao cấp |
| Ốc vít | Inox 304 |
| Gioăng kép | EPDM loại 1 có độ đàn hồi cao chống lão hóa |
| Keo | Sử dụng keo Dowcorming nhập khẩu Hàn Quốc |
| Keo ép góc | Sử dụng keo PU88 |
| Giới hạn chiều cao cánh | Từ 400 – 3500 mm |
| Giới hạn chiều rộng cánh | Từ 400 – 1500 mm |
| Bao gói | Bìa Carton tiêu chuẩn |

TÍNH NĂNG NỔI BẬT CỬA ĐI MỞ TRƯỢT NHÔM XINGFA QUẢNG ĐÔNG CỦA WINPRO GROUP
Cách âm, cách nhiệt
+ Cửa và vách được cấu tạo từ thanh hợp kim nhôm hệ Xingfa cao cấp có cấu trúc dạng hộp chia thành nhiều khoang trống kết hợp với hệ gioăng và hệ phụ kiện kim khí đồng bộ đã tạo nên sản phẩm có khả năng cách âm tốt, cách nhiệt cao.
+ Công nghệ ghép góc tiên tiến bậc nhất hiện nay đảm bảo cửa nhôm Xingfa mở quay cứng vững, cách âm, cách nhiệt cùng độ kín, khít cao.
Kín nước & Kín khí
+ Các ống dẫn nước hướng ra ngoài được thiết kế trên khung cửa sẽ ngăn nước chẩy vào bên trong một cách tối đa.
+ Sự kín khít tuyệt đối cản trở việc lưu thông không khí lạnh ở trong và nóng ở ngoài góp phần tiết kiệm chi phí điện cho điều hoà.
Chịu áp lực gió
+ Cửa đi mở trượt nhôm Xingfa có độ an toàn cao, tránh được nguy cơ gió dập.
+ Sản phẩm chịu được áp lực gió lên đến 1600 pascal, đủ điều kiện đảm bảo an toàn cho những công trình nằm tại khu vực nhiều gió bão.
Hiệu quả kinh tế
+ Việc sử dụng cửa hợp kim, vách nhôm và hộp kính là giải pháp tốt nhất trong việc tiết kiệm năng lượng cho các toà nhà cao tầng có nhiều mặt tiếp xúc trực tiếp với ánh năng mặt trời.
+ Thanh nhôm cửa sổ mở trượt được xử lý bề mặt và sơn tĩnh điện với công nghệ tiên tiến sẽ có độ bền cao, luôn giữ được màu sắc và kết cấu của cửa ngay cả trong điều kiện thời tiết khắc nghiệt ở Việt Nam
An toàn và thuận tiện
+ Có độ cứng cao giúp tăng khả năng chịu lực, đảm bảo an toàn cho ngôi nhà.
+ Giúp mở rộng không gian và tạo được tầm nhìn bao quát cho công trình.
+ Vật liệu nhẹ góp phần làm giảm tải trọng của công trình.
+ Tiết kiệm không gian đóng/mở cửa, giúp tận dụng tối đa diện tích cho ngôi nhà.
+ Đóng mở dễ dàng, đảm bảo diện tích sử dụng tối đa cho căn phòng.
+ Vẫn có thể mở cửa để đảm bảo thông thoáng trong điều kiện thời tiết có mưa.
+ Đa dạng kích thước, kiểu dáng, phù hợp với nhiều kiểu kiến trúc.
Vật liệu siêu bền, thiết kế đỉnh cao
+ Cửa đi trượt mỗi ngày mang đến cho bạn cái nhìn cảnh quan dễ chịu, giúp bạn cảm nhận được làn gió nhẹ nhàng và sự lưu chuyển không khí bên trong và bên ngoài với những khuôn viên bên ngoài.
+ Qua những vật liệu và cách thiết kế đỉnh cao, cửa đi trượt được đóng mở nhẹ nhàng, tránh tháo gỡ từ bên ngoài, sức chịu đựng bền lâu, và chống được mưa gió.
Thiết kế kiểu bậc thang với những vòng gioăng đặc biệt:
+ Ngưỡng cửa và đáy khung cánh được thiết kế kiểu bậc thang đảm bảo sự thoát nước tốt nhất và ngăn chặn nước chảy ngược trở vào.
+ Đặc biệt, cánh cửa trượt được thiết kế với những vòng gioăng đặc biệt hạn chế tối đa sự thấm nước từ bên ngoài giúp cho ngôi nhà luôn khô thoáng cả khi có trời mưa.
Thiết kế chống rơi và bánh xe chất lượng cao:
+ Thiết kế chống rơi trên đỉnh khung cánh giúp ngăn cho bánh xe không trượt khỏi rãnh đảm bảo an toàn và trượt đúng hướng chuyển động.
+ Bánh xe kép chất lượng cao có thể điều chỉnh được độ cao, đảm bảo cho cửa trượt một cách nhẹ nhàng và an toàn.
+ Hệ cửa đi cung cấp chốt khóa đa điểm, tăng cường tính kiên cố và độ kín khít của cửa có kích thước lớn.
Lắp đặt & bảo dưỡng
+ Thuận tiện trong công việc thi công và lắp đặt chắc chắn, an toàn mang đến một sản phẩm hoàn thiện cả về thiết kế và độ bền.
+ Sản phẩm dễ lau chùi, dễ bảo dưỡng và luôn giữ được vẻ đẹp hoàn hảo ban đầu.
Độ bền vượt thời gian
+ Hợp kim nhôm được ứng dụng đứng thứ 2 (sau thép) về sản xuất và ứng dụng. Được ứng dụng trong công nghệ chế tạo máy bay và các thiết bị ngành hàng không.
+ Cửa nhôm Xingfa được lắp ghép từ thanh nhôm hợp kim định hình Profile Xingfa nhập khẩu chính hãng tương thích với hệ phụ kiện kim khí Kinlong cao cấp.... tạo nên một hệ cửa có độ bền vượt thời gian
Phụ kiện Kinlong cao cấp
+ Cửa nhôm Xingfa sử dụng hệ phụ kiện kim khí Kinlong chính hãng chất lượng cao, chống ăn mòn, chống gỉ giúp cửa vững chắc.
+ Phụ kiện kim khí Kinlong đa dạng kiểu dáng và mẫu mã cho khách hàng lựa chọn.
Cùng với sự thành công của WINPRO, luôn luôn có sự đồng hành góp mặt của các đối tác Uy tín - Chất lượng